CERRITO

VIVIENDA UNIFAMILIAR

ESTADO DE OBRA

PROGRESO

%

MEMORÍA DESCRIPTIVA

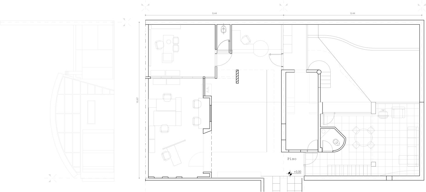
En la tranquila calle Cerrito, entre Paraguay y Presidente Roca, en el encantador barrio Abaso, se encuentra una casa de pasillo que destaca por su diseño único y cuidadosamente planificado. La construcción se caracteriza por un muro medianero que establece límites con elegancia, complementado con columnas estratégicamente ubicadas en la planta baja para crear una envolvente de mampostería exterior que define su estética distintiva. El ingenioso diseño continúa en la planta alta, donde un entrepiso de madera de pinotea se eleva sobre un elegante perfil IPN, proporcionando tanto belleza como funcionalidad estructural.

La fachada norte de la casa se abre hacia un pintoresco jardín interior, a través de una carpintería de hierro negro que asegura vistas panorámicas de los interiores hacia el patio interno, inundando los espacios con luz natural y creando una sensación de conexión con la naturaleza. Este diseño cuidadosamente pensado no solo maximiza el aprovechamiento del espacio disponible, sino que también enfatiza la importancia del entorno y la integración armoniosa entre el interior y el exterior. Con su encanto distintivo y su atención al detalle, esta casa de pasillo se erige como un testimonio de la arquitectura innovadora y sensible al contexto en el corazón del barrio Abasto.

PLANTAS Y VISTAS

Mobirise

UBICACIÓN DEL PROYECTO

GALERÍA DE FOTOS

CONTACTO

ARQ. LUIS BORGHI

mat. CAPSF 02690

+54 9 341 469-3135

ARQ. SEBA BORGHI

mat. CAPSF 10435

+54 9 341 354-0402



E-MAIL

info@borghiconstructora.com



Offline Website Software