GARDELLI

VIVIENDA UNIFAMILIAR

ESTADO DE OBRA

PROGRESO

%

MEMORÍA DESCRIPTIVA

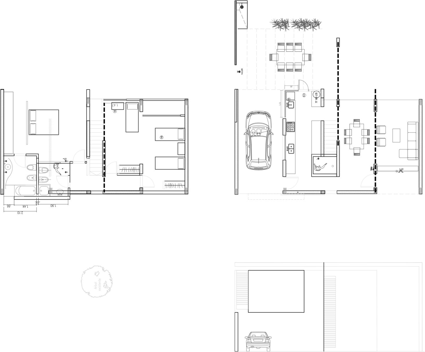
En loteo Newbery al norte del barrio Fisherton, con un acceso rápido en una ubicación privilegiada. Con supermercados, shoppings, transporte público, sector de salud y gastronómico a disposición en un radio muy pequeño de distancia. Salón al frente o dormitorio independiente con baño propio. Casa principal con ingreso a living comedor. Cocina integrada al lavadero. Baño de servicio debajo de escalera con inodoro. Cochera con espacio para dos vehiculos bajo techo. Comunicacion directa entre la calle y el patio para acceso de visitas. Amplio Jardin con mas de 10 metros de fondo.
En planta alta, dos baño completo con ducha, tres dormitorios, todos al contrafrente. Baulera en el fondo de la casa para atesorar herramientas. Cochera para varios vehículos al descubierto.

Pisos de porcelanato en todos los ambientes, aberturas aluar tipo modena de aluminio, sistema de agua caliente independiente mediante calentador de agua exclusivo para la ducha, cocina con mesada de granito nacional, artefacto de cocina a gas, bacha doble de acero inoxidable, mobiliario de guardado con bajo mesada. Baños con loza sanitaria y griferías en buen estado de uso, duchador. 300 m2 de terreno con 12 metros de frente por 30 metros de fondo. 150 m2 de superficie cubierta. 

PLANTAS Y VISTAS

Mobirise

UBICACIÓN DEL PROYECTO

GALERÍA DE FOTOS

CONTACTO

ARQ. LUIS BORGHI

mat. CAPSF 02690

+54 9 341 469-3135

ARQ. SEBA BORGHI

mat. CAPSF 10435

+54 9 341 354-0402



E-MAIL

info@borghiconstructora.com



Offline Website Builder