DUPLEX UGARTECHE

DESARROLLO INMOBILIARIO

ESTADO DE OBRA

PROGRESO

%

MEMORÍA DESCRIPTIVA

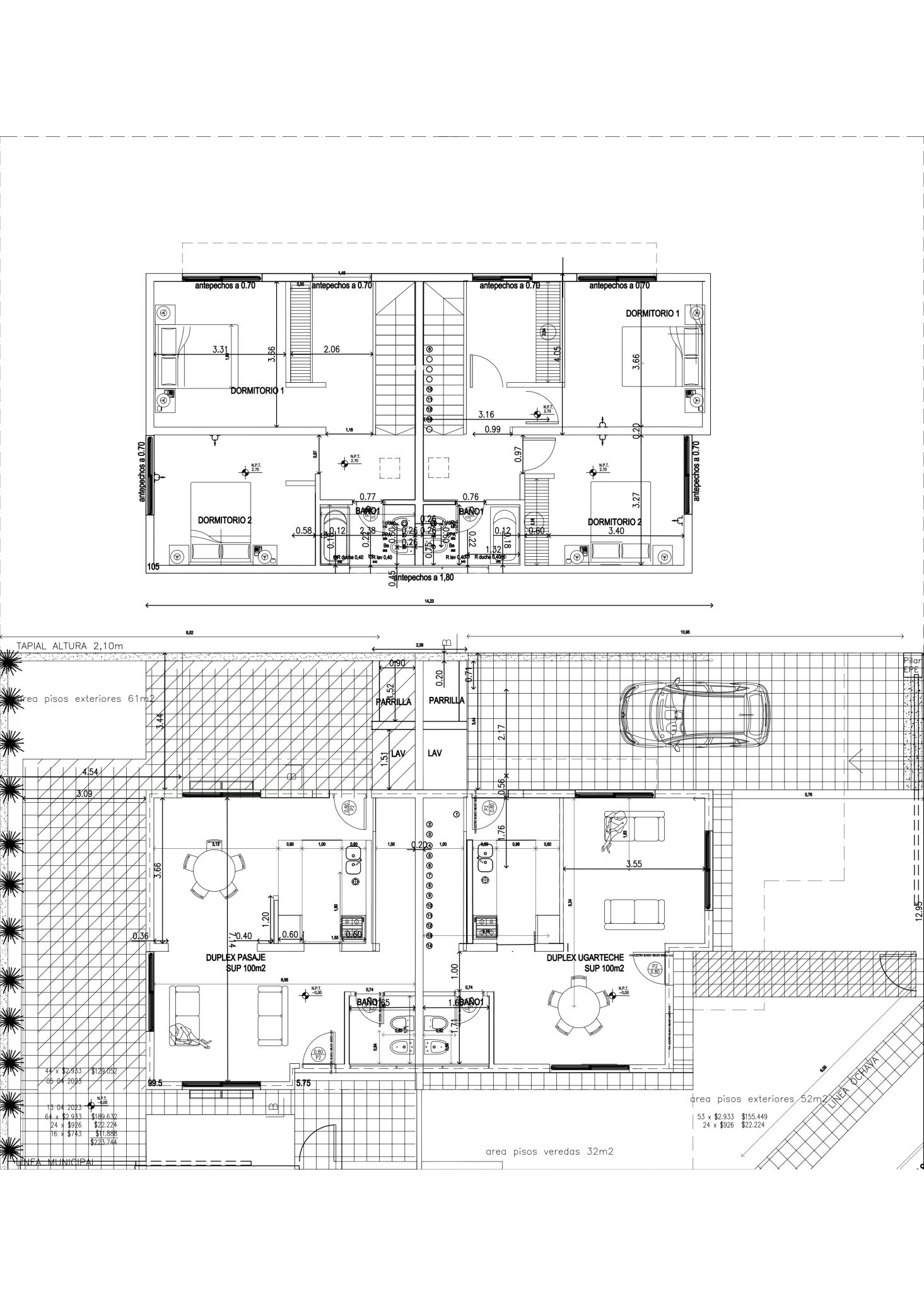
Casa desarrollada en dos plantas ubicada en Fisherton. Ingreso principal al área de estar que cuenta con cocina integrada al comedor por barra desayunadora, baño toilette en planta baja, baulera o área de depósito; ingreso segundario a la propiedad desde la cocina por el garaje que cuenta con parrillero y sector de lavadero. En la segunda planta se desarrollan 2 dormitorios amplios con placar empotrado con puertas e interiores diseñados a medida, una habitación extra o comodín y baño completo.

Cocina totalmente equipada con mesada e isla de granito más bacha de acero inoxidable marca johnson, grifería mono comando, bajo mesada y alacena, cocina, espacio técnico para microondas y heladera. Baños con artefactos de primera línea marca Ferrum, baño principal con ducha y mamparas en vidrio. Pisos de porcelanato en todos los ambientes, todas las aberturas cuentan con rejas de seguridad color negro. Climatización por aires acondicionados (preinstalación en todos los ambientes) y pico de calefactor a gas en el estar comedor. Agua caliente por termotanque. Cisterna de 650 litros, con bomba presurizadora. Alarma instalada.

PLANTAS Y VISTAS

Mobirise

UBICACIÓN DEL PROYECTO

GALERÍA DE FOTOS

CONTACTO

ARQ. LUIS BORGHI

mat. CAPSF 02690

+54 9 341 469-3135

ARQ. SEBA BORGHI

mat. CAPSF 10435

+54 9 341 354-0402



E-MAIL

info@borghiconstructora.com



Website Building Software